Közzététel dátuma: 2024. 02. 07. 0:00:00

Balatonakarattya, eladó tégla lakás

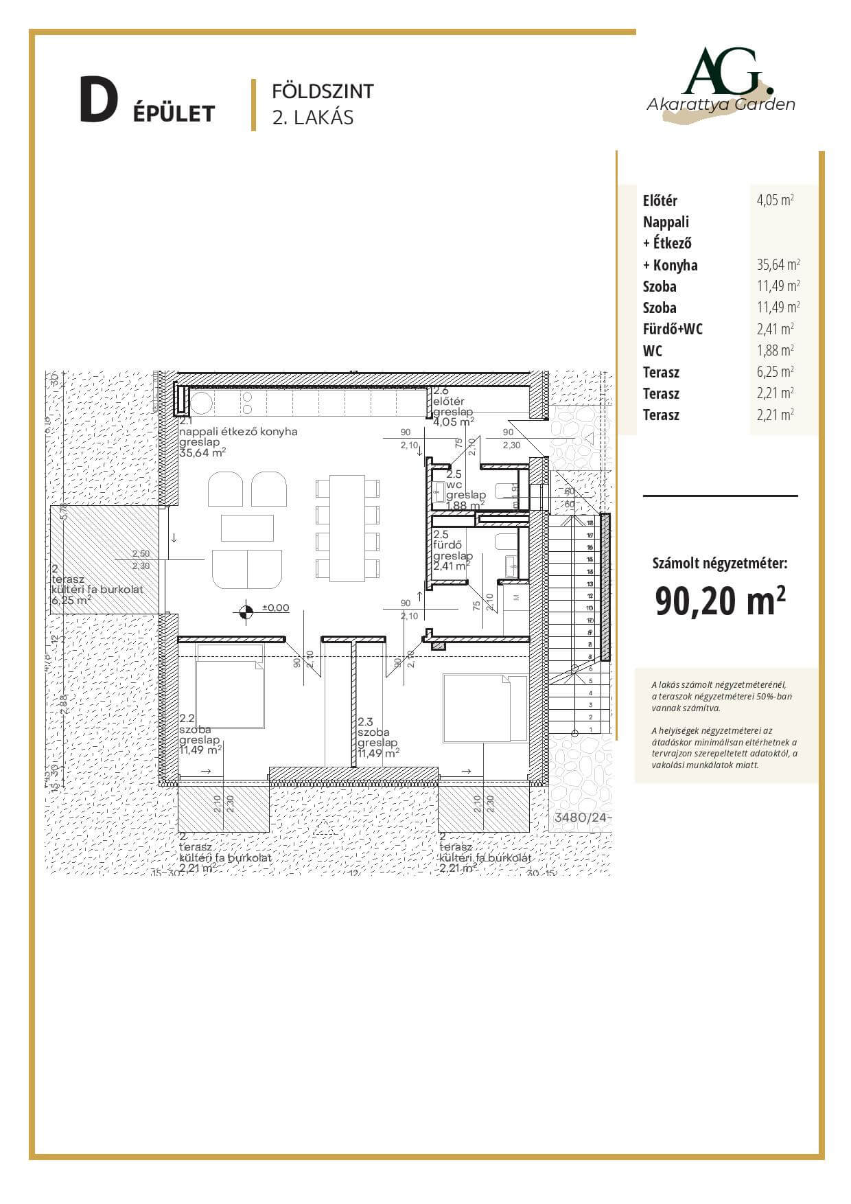
Balatonakarattya
  • 1 szoba + 1 fél
  • 38 m2

131,74M Ft

Ingatlan adatai

Típus:
tégla lakás
Építés éve:
2024
Szobák száma:
1 + 1 fél

Leírás

Exkluzív ajánlat a Max-Home Ingatlaniroda kínálatából!

Balatonakarattyai, örök panorámás, ÚJ ÉPÍTÉSU lakások foglalhatóak 2024. májusi átadással karnyújtásnyira a Balaton parttól!

Elso ütemben minoségi kivitelezéssel két darab 3 szintes társasház, 5-5 lakása közül választhat leendo tulajdonosa.

A lakópark zárt rendszeru, saját parkolóval, parkosított környezettel tervezett.

Kulcsrakész ár, muszaki tartalom:

  • a falak Porotherm 30 N+F teherhordó téglából készülnek, a lakások között 30 cm-es hanggátló falazat,
  • 3 rétegu, minoségi nyílászárók,
  • a lakások ho- és hutési energia ellátása, használati meleg víz termelése a többi lakástól függetlenül levego - víz hoszivattyúval történik,
  • az egyes helyiségekben a futést padlófutés, a hutést fan-coilok biztosítják, a tetotéri lakásokban mennyezethutés-futés kerül kialakításra,
  • a földszinti lakásokhoz saját használatú kerti terasz tartozik,
  • minden lakáshoz a pinceszinten egy tágas tároló tartozik, saját gépészettel, továbbá lakásonként egy gépkocsi parkoló, melyek a vételár részét képezik,
  • a társasház megközelítése magánútról történik, az udvarba elektromos kapun juthatunk be,
  • minden hideg és meleg burkolat, szaniter szabadon választható

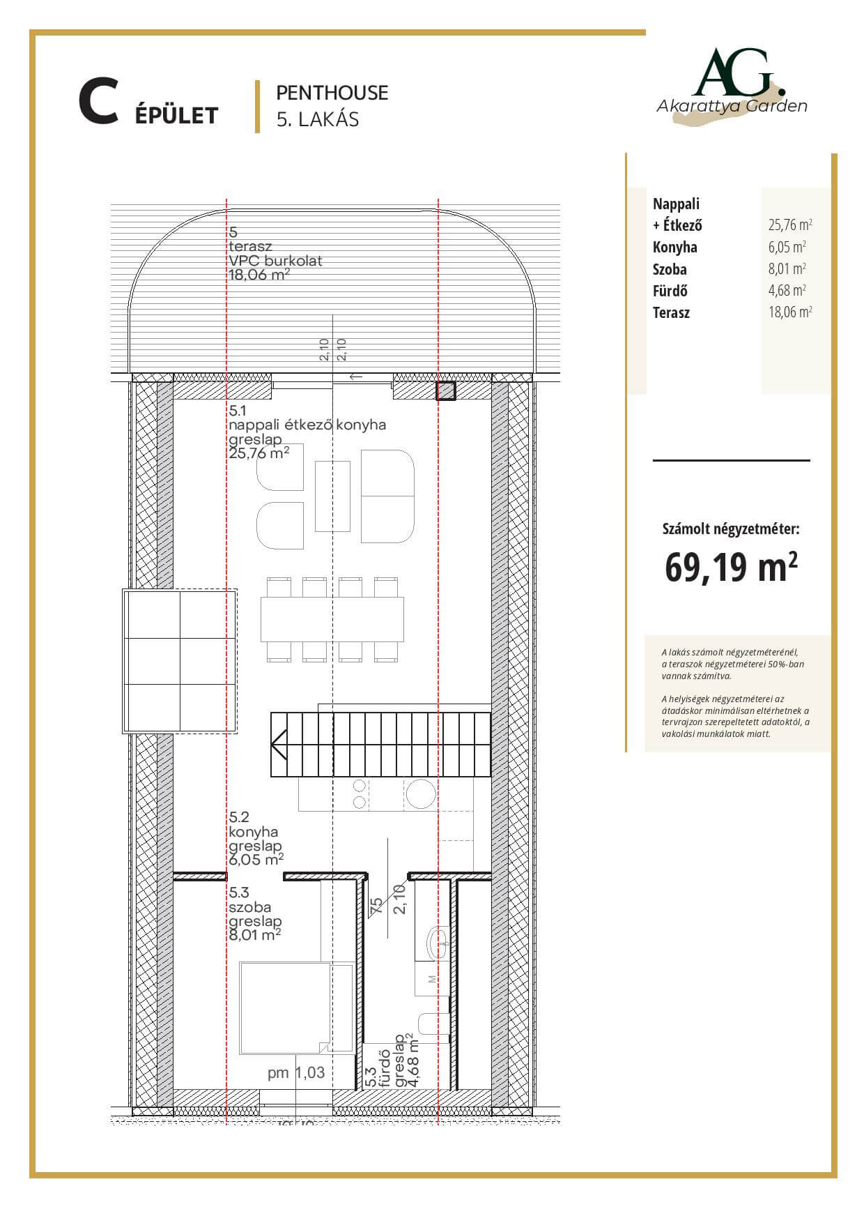
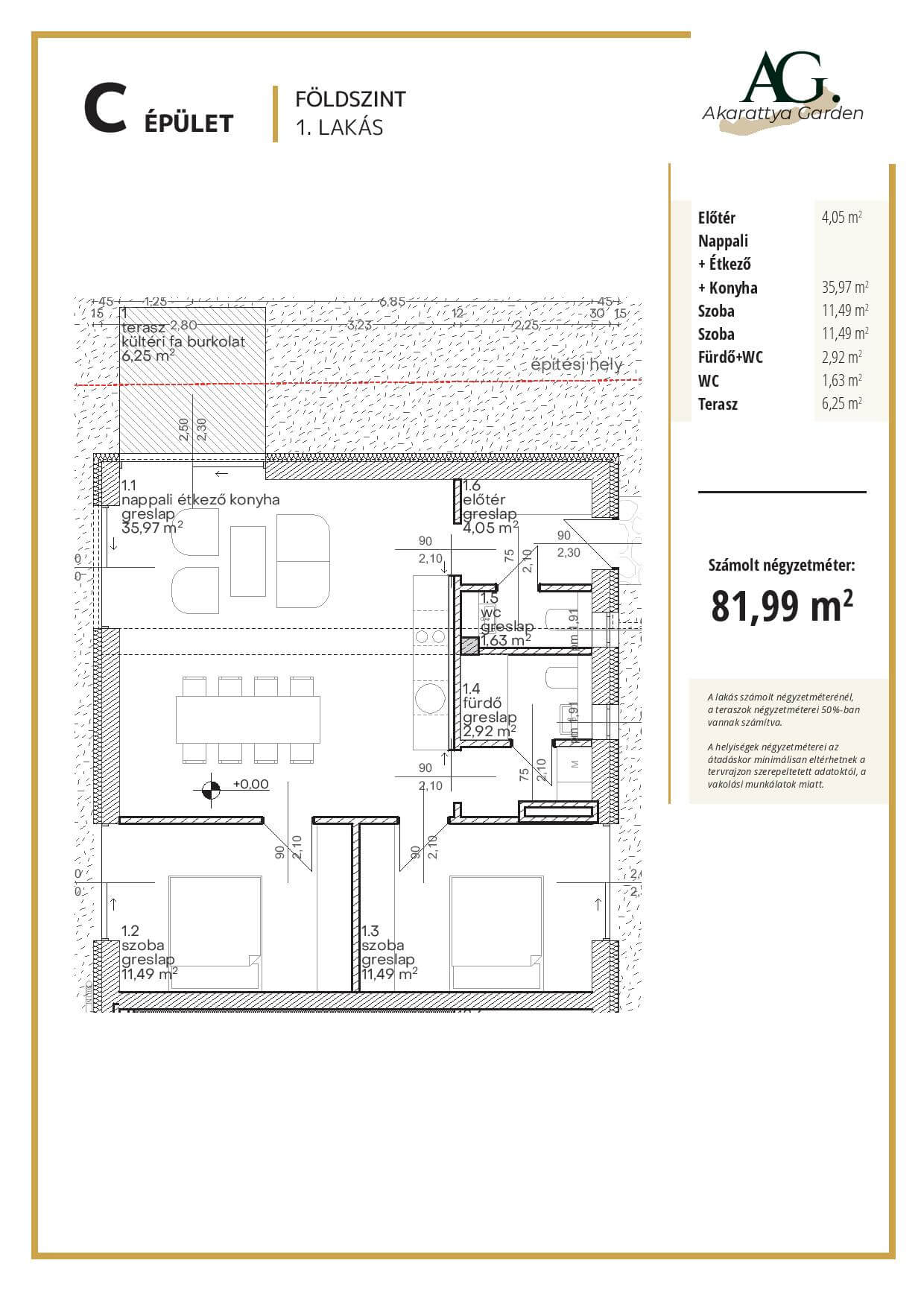
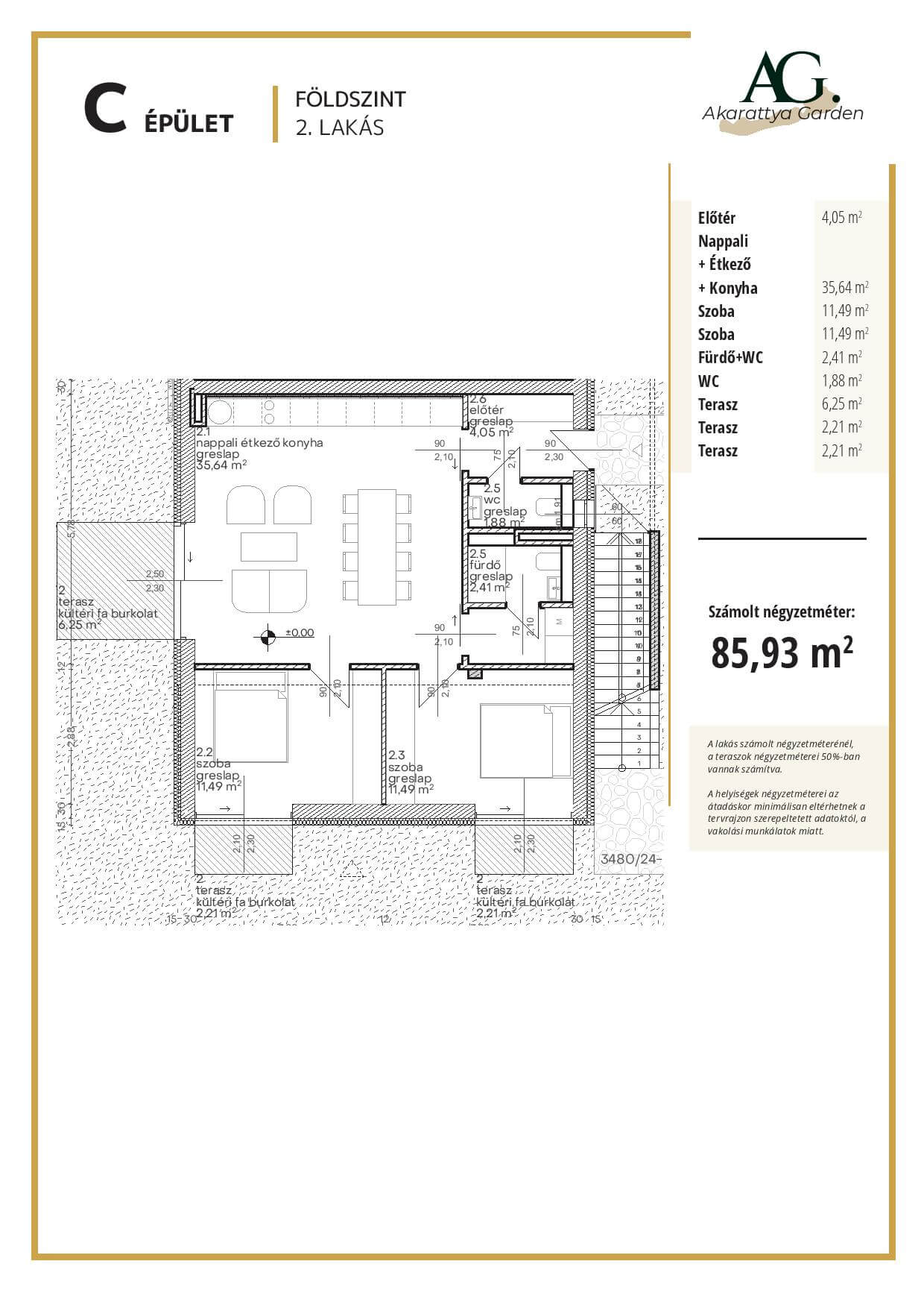
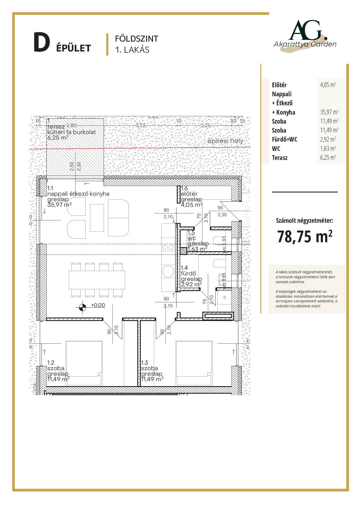
Választható ingatlanok:

  • földszinti lakások: 63.65 nm (3 szobás) + 13,12 nm terasz + 10.78 nm tároló Ár.: 176.817.020 forint,
  • emeleti lakások: 37.41. nm (2 szoba) + 27 nm terasz + 9,88 nm tároló Ár: 131.737.100 forint
  • tetori lakás: 48.71 nm (2 szoba) + 25.17 terasz + 9.52 nm tároló Ár: 155.065.730 forint

Kifizetés szakaszosan, készültségi fok alapján történik.

Amennyiben a hirdetés felkeltette érdeklodését, szeretne többet megtudni, keressen Minket bizalommal!


Partner: BankMonitor


Image Description

Hartmann Zsuzsanna

+36 30 741 7718 Ügyfél elérhetősége